• Aanbod
  • Koop
  • Leeuwarden, Beethovenstraat 45

8916 GE, Leeuwarden

Beethovenstraat 45

€ 375.000 k.k.

Omschrijving

In de gewilde en kindvriendelijke Componistenbuurt, aan de westkant van de stad gelegen tot in de puntjes afgewerkte en uitstekend onderhouden tussenwoning met een heerlijke zonnige achtertuin op het zuidwesten voorzien van een achterom.
De woning is de afgelopen jaren door de huidige eigenaren volledig verbouwd. Er rust een energielabel A op de woning, er zijn 6 zonnepanelen en de cv ketel is van 2024.

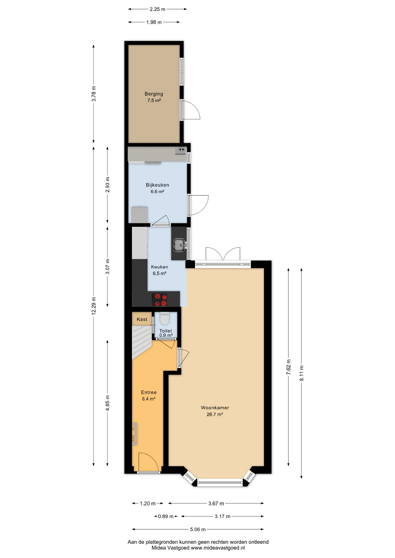
De begane grond beschikt over een heerlijke lichte en sfeervolle doorzonwoonkamer met aan de voorzijde een erker en aan de achterzijde openslaande deuren naar de achtertuin. De moderne keuken beschikt over diverse inbouwapparatuur en heeft een doorloop naar de bijkeuken. Op de 1e verdieping bevinden zich twee ruime slaapkamers (14,2m² en 10,9m²) en een prachtige volledig betegelde badkamer met wastafelmeubel, 2e toilet en ruime inloopdouche. Op de 2e verdieping is een ruime zolder (24,1m²) met de mogelijkheid om hier nog twee aparte kamers te realiseren.

De Componistenbuurt is een gewilde en kindvriendelijke buurt op loop- en fietsafstand van het centrum. De rondweg is nabij en in de directe omgeving liggen o.a. een speeltuin, een Jumbo, bakkerij, bloemist en een basisschool.
De wijk kenmerkt zich door de karakteristieke jaren ’30 woningen.

Goed om te weten:
– sfeervolle en lichte woonkamer met openslaande deuren naar de tuin
– moderne keuken met diverse inbouwapparatuur
– bijkeuken met aansluitingen voor het witgoed
– heerlijke zonnige achtertuin op het zuidwesten mét een achterom
– 2 ruime slaapkamers op de 1e verdieping
– prachtige moderne badkamer met inloopdouche, wastafelmeubel en 2e toilet
– royale 2e verdieping met de mogelijkheid om hier nog 2 slaapkamers te maken
– energielabel A, 6 zonnepanelen en een CV uit 2024
– uitstekend onderhouden, gemoderniseerd en tot in de puntjes afgewerkt en verzorgd
– instapklaar

Lees meer

Kenmerken

  • Status Verkocht
  • Vraagprijs € 375.000 k.k.
  • Aangeboden sinds 18 mei 2026
  • Aanvaarding In overleg
Meer kenmerken

Omschrijving

In de gewilde en kindvriendelijke Componistenbuurt, aan de westkant van de stad gelegen tot in de puntjes afgewerkte en uitstekend onderhouden tussenwoning met een heerlijke zonnige achtertuin op het zuidwesten voorzien van een achterom.
De woning is de afgelopen jaren door de huidige eigenaren volledig verbouwd. Er rust een energielabel A op de woning, er zijn 6 zonnepanelen en de cv ketel is van 2024.

De begane grond beschikt over een heerlijke lichte en sfeervolle doorzonwoonkamer met aan de voorzijde een erker en aan de achterzijde openslaande deuren naar de achtertuin. De moderne keuken beschikt over diverse inbouwapparatuur en heeft een doorloop naar de bijkeuken. Op de 1e verdieping bevinden zich twee ruime slaapkamers (14,2m² en 10,9m²) en een prachtige volledig betegelde badkamer met wastafelmeubel, 2e toilet en ruime inloopdouche. Op de 2e verdieping is een ruime zolder (24,1m²) met de mogelijkheid om hier nog twee aparte kamers te realiseren.

De Componistenbuurt is een gewilde en kindvriendelijke buurt op loop- en fietsafstand van het centrum. De rondweg is nabij en in de directe omgeving liggen o.a. een speeltuin, een Jumbo, bakkerij, bloemist en een basisschool.
De wijk kenmerkt zich door de karakteristieke jaren ’30 woningen.

Goed om te weten:
– sfeervolle en lichte woonkamer met openslaande deuren naar de tuin
– moderne keuken met diverse inbouwapparatuur
– bijkeuken met aansluitingen voor het witgoed
– heerlijke zonnige achtertuin op het zuidwesten mét een achterom
– 2 ruime slaapkamers op de 1e verdieping
– prachtige moderne badkamer met inloopdouche, wastafelmeubel en 2e toilet
– royale 2e verdieping met de mogelijkheid om hier nog 2 slaapkamers te maken
– energielabel A, 6 zonnepanelen en een CV uit 2024
– uitstekend onderhouden, gemoderniseerd en tot in de puntjes afgewerkt en verzorgd
– instapklaar

Kenmerken

Overdracht
  • Status Verkocht
  • Vraagprijs € 375.000 k.k.
  • Woonoppervlakte 115 m2
  • Inhoud 430 m3
  • Kamers 4 kamers (3 slaapkamers)
  • Tuin Achtertuin, voortuin
  • Bouwjaar 1934
  • Aangeboden sinds 18 mei 2026
  • Aanvaarding In overleg
Parkeren
  • Parkeerfaciliteiten Openbaar parkeren
  • Garage Geen garage
Indeling
  • Ligging Aan rustige weg, in woonwijk
  • Soort woning Eengezinswoning
  • Type woning Tussenwoning
  • Aantal woonlagen 3
Overig
  • CV ketel aanwezig Ja
  • CV ketel brandstof Gas

Faciliteiten in de buurt

      Bent u al nieuwsgierig? Wij horen graag van u!

      Wij helpen u graag verder met het zoeken van de perfecte woning.

      Aanbod

      Relevante woningen

      Leeuwarden, Gerard Doustraat 32

      € 345.000 k.k.
      Beschikbaar
      Leeuwarden, Gerard Doustraat 32

      Leeuwarden, Romkeslaan 104

      € 375.000 k.k.
      Beschikbaar
      Leeuwarden, Romkeslaan 104

      Leeuwarden, Zenegroen 59

      € 369.000 k.k.
      Beschikbaar
      Leeuwarden, Zenegroen 59

      Leeuwarden, Barend van der Veenwei 40

      € 425.000 k.k.
      Beschikbaar
      Leeuwarden, Barend van der Veenwei 40

      Leeuwarden, Bilderdijkstraat 13

      € 365.000 k.k.
      Beschikbaar
      Leeuwarden, Bilderdijkstraat 13

      Hurdegaryp, Rijksstraatweg 126

      € 365.000 k.k.
      Beschikbaar
      Hurdegaryp, Rijksstraatweg 126
      Volledige aanbod
      Welke cookies zijn er?

      We onderscheiden verschillende soorten cookies.

      Functionele cookies

      Onze sessie- en blijvende cookies vervallen bij het sluiten van de webbrowser of blijven op uw apparaat staan. Zie hierboven voor meer informatie.

      Analytische cookies

      Onze sessie- en blijvende cookies vervallen bij het sluiten van de webbrowser of blijven op uw apparaat staan. Zie hierboven voor meer informatie.

      Tracking cookies

      Onze sessie- en blijvende cookies vervallen bij het sluiten van de webbrowser of blijven op uw apparaat staan. Zie hierboven voor meer informatie.

      Social media plug-in cookies

      Onze sessie- en blijvende cookies vervallen bij het sluiten van de webbrowser of blijven op uw apparaat staan. Zie hierboven voor meer informatie.