• Aanbod
  • Koop
  • Leeuwarden, Braksân 110

8939 EG, Leeuwarden

Braksân 110

€ 350.000 k.k.

Omschrijving

Op het schiereiland Braksân, in de wijk Zuiderburen, staat deze tussenwoning met diepe tuin gesitueerd op het noorden met een vrijstaande houten berging en achterom. Met een woonoppervlakte van 111 m² beschikt de woning over vier ruime slaapkamers. Het woning is voorzien van een energielabel A.

Zuiderburen is een kindvriendelijke wijk met diverse voorzieningen, zoals winkels, basisscholen, kinderopvang en sportfaciliteiten, allemaal op loop- en fietsafstand. Ook de binnenstad is binnen afzienbare tijd op de fiets te bereiken en de rondweg bevindt zich nabij.

Goed om te weten:
– tuingerichte woonkamer en straatgerichte open keuken
– vrijstaande houten berging in de tuin
– voorzien van een achterom
– 3 slaapkamers op de 1e verdieping
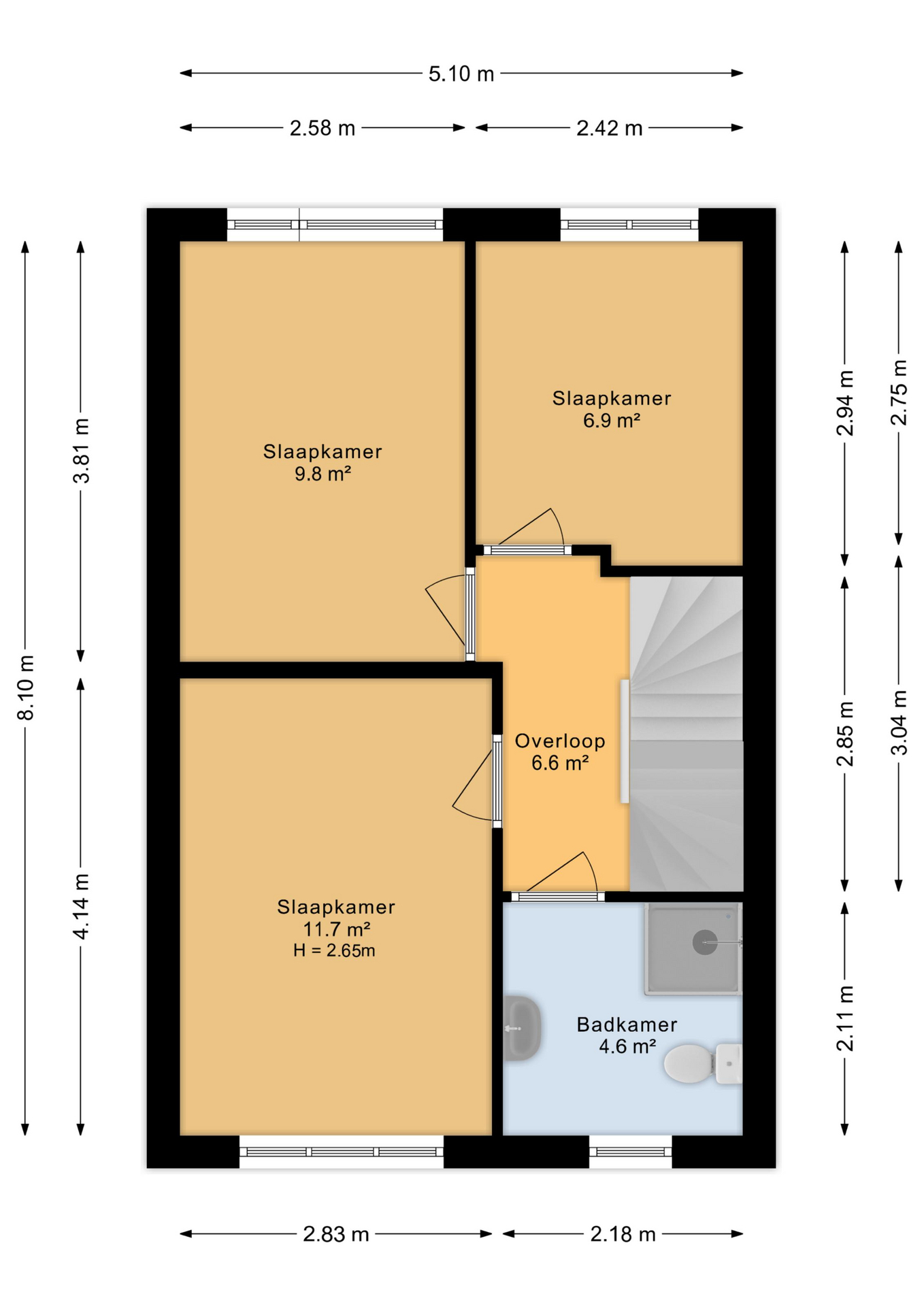
– 2e verdieping met 4e slaapkamer en ruime overloop
– energielabel A
– houten kozijnen met dubbele beglazing
– zonneboiler en cv ketel
– de kosten voor splitsing van het perceel (à € 495,-) komen voor rekening van koper
– de overdracht zal plaatsvinden bij een vaste notaris; De Haan Notarissen in Leeuwarden

Lees meer

Kenmerken

  • Status Beschikbaar
  • Vraagprijs € 350.000 k.k.
  • Aangeboden sinds 05 november 2025
  • Aanvaarding In overleg
Meer kenmerken

Omschrijving

Op het schiereiland Braksân, in de wijk Zuiderburen, staat deze tussenwoning met diepe tuin gesitueerd op het noorden met een vrijstaande houten berging en achterom. Met een woonoppervlakte van 111 m² beschikt de woning over vier ruime slaapkamers. Het woning is voorzien van een energielabel A.

Zuiderburen is een kindvriendelijke wijk met diverse voorzieningen, zoals winkels, basisscholen, kinderopvang en sportfaciliteiten, allemaal op loop- en fietsafstand. Ook de binnenstad is binnen afzienbare tijd op de fiets te bereiken en de rondweg bevindt zich nabij.

Goed om te weten:
– tuingerichte woonkamer en straatgerichte open keuken
– vrijstaande houten berging in de tuin
– voorzien van een achterom
– 3 slaapkamers op de 1e verdieping
– 2e verdieping met 4e slaapkamer en ruime overloop
– energielabel A
– houten kozijnen met dubbele beglazing
– zonneboiler en cv ketel
– de kosten voor splitsing van het perceel (à € 495,-) komen voor rekening van koper
– de overdracht zal plaatsvinden bij een vaste notaris; De Haan Notarissen in Leeuwarden

Kenmerken

Overdracht
  • Status Beschikbaar
  • Vraagprijs € 350.000 k.k.
  • Woonoppervlakte 111 m2
  • Inhoud 400 m3
  • Kamers 5 kamers (4 slaapkamers)
  • Tuin Achtertuin, voortuin
  • Aangeboden sinds 05 november 2025
  • Aanvaarding In overleg
Parkeren
  • Parkeerfaciliteiten Openbaar parkeren
  • Garage Geen garage
Indeling
  • Ligging Aan rustige weg, in woonwijk
  • Soort woning Eengezinswoning
  • Type woning Tussenwoning
  • Aantal woonlagen 3
Overig
  • CV ketel aanwezig Ja
  • CV ketel brandstof Gas

Plattegronden

Faciliteiten in de buurt

      Bent u al nieuwsgierig? Wij horen graag van u!

      Wij helpen u graag verder met het zoeken van de perfecte woning.

      Aanbod

      Relevante woningen

      Leeuwarden, Vredeman de Vriesstraat 46

      € 395.000 k.k.
      Beschikbaar
      Leeuwarden, Vredeman de Vriesstraat 46

      Leeuwarden, Braksân 152

      € 335.000 k.k.
      Onder bod
      Leeuwarden, Braksân 152

      Leeuwarden, Minnemastraat 10

      € 385.000 k.k.
      Beschikbaar
      Leeuwarden, Minnemastraat 10

      Leeuwarden, de Ruyterweg 8

      € 365.000 k.k.
      Beschikbaar
      Leeuwarden, de Ruyterweg 8

      Leeuwarden, Tjerk Hiddesstraat 3

      € 350.000 k.k.
      Beschikbaar
      Leeuwarden, Tjerk Hiddesstraat 3
      Volledige aanbod
      Welke cookies zijn er?

      We onderscheiden verschillende soorten cookies.

      Functionele cookies

      Onze sessie- en blijvende cookies vervallen bij het sluiten van de webbrowser of blijven op uw apparaat staan. Zie hierboven voor meer informatie.

      Analytische cookies

      Onze sessie- en blijvende cookies vervallen bij het sluiten van de webbrowser of blijven op uw apparaat staan. Zie hierboven voor meer informatie.

      Tracking cookies

      Onze sessie- en blijvende cookies vervallen bij het sluiten van de webbrowser of blijven op uw apparaat staan. Zie hierboven voor meer informatie.

      Social media plug-in cookies

      Onze sessie- en blijvende cookies vervallen bij het sluiten van de webbrowser of blijven op uw apparaat staan. Zie hierboven voor meer informatie.