Omschrijving
Dit royaal opgezette, uitstekend onderhouden en instapklare penthouse is gelegen op een gewilde en mooie locatie in Leeuwarden. Vanuit het appartement is er een prachtig uitzicht over de Noordersingel, stadspark De Prinsentuin en de Noorder Stadsgracht – één van de mooiste natuurlijke jachthavens van Nederland.
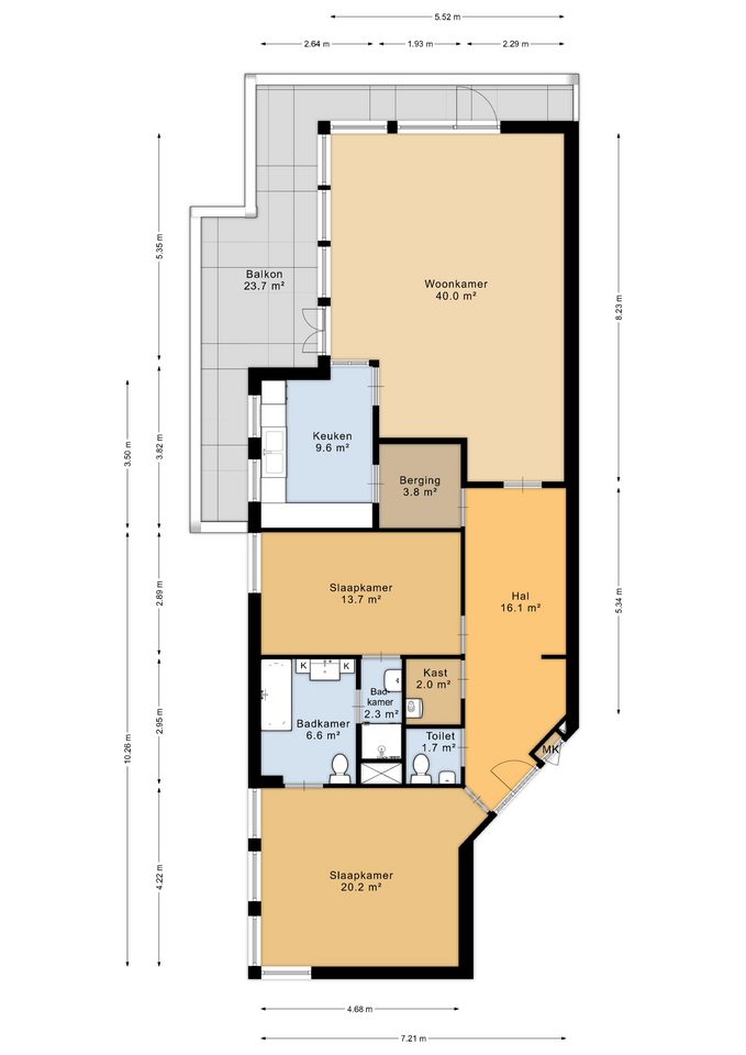
Het appartement ligt op de 5e woonlaag, heeft een ruime woonkamer, twee slaapkamers en een ruim balkon. In de kelder bevindt zich een eigen (fietsen)berging en er is een eigen parkeerplaats in de parkeergarage.
Het complex is rustig gelegen, maar bevindt zich verrassend genoeg op loopafstand van het bruisende, monumentale stadscentrum. Daarnaast ligt het prachtige Rengerspark nabij en zijn er diverse winkels en supermarkten op een prima loop- en/of fietsafstand.
INDELING
Begane grond:
Binnenkomst in de gezamenlijke ruime hal via een overdekte entree met video-intercom. Vanuit deze hal zijn de lift en de ondergelegen parkeergarage, waar zich de eigen berging bevindt, toegankelijk.
Appartement:
Binnenkomst in de ruime hal met toegang tot het toilet, een inpandige kast met cv-opstelling, de beide slaapkamers en de woonkamer. De eerste slaapkamer is ruim 20 m² groot en heeft een badkamer en-suite. Deze badkamer beschikt over een ligbad, 2e toilet, wastafel en douche. Vanuit deze badkamer is er toegang tot een 2e (kleine) badkamer, welke beschikt over een douche en wastafel. Via deze 2e badkamer is tevens de 2e slaapkamer van ca. 14 m² toegankelijk.
In de royale living met visgraat vloer komt veel natuurlijk daglicht binnen via de vele ramen. Er is een schuifpui naar het balkon, evenals openslaande deuren. Vanaf het balkon is er prachtig uitzicht en hier kunt u heerlijk in alle rust zitten, zonder enige inkijk. De dichte keuken is in hoekopstelling en beschikt over o.a. een gaskookplaat met afzuigkap, een vaatwasser, koelkast en vriezer. De inpandige berging/bijkeuken is vanuit de keuken te bereiken en heeft weer een deur naar de hal.
Goed om te weten:
– energielabel B
– 2 ruime slaapkamers
– 2 badkamers
– heerlijk balkon met een fantastisch uitzicht
– eigen parkeerplaats in de parkeergarage en eigen (fietsen)berging
– zonnepanelen op het complex 2025 (voor de gemeenschappelijke ruimten)
– elektrische laadpaal aanwezig in de parkeergarage
– bijdrage VvE is € 391,13 per maand
Kenmerken
- Status Beschikbaar
- Vraagprijs € 540.000 k.k.
- Aangeboden sinds 06 oktober 2025
- Aanvaarding In overleg
Omschrijving
Dit royaal opgezette, uitstekend onderhouden en instapklare penthouse is gelegen op een gewilde en mooie locatie in Leeuwarden. Vanuit het appartement is er een prachtig uitzicht over de Noordersingel, stadspark De Prinsentuin en de Noorder Stadsgracht – één van de mooiste natuurlijke jachthavens van Nederland.
Het appartement ligt op de 5e woonlaag, heeft een ruime woonkamer, twee slaapkamers en een ruim balkon. In de kelder bevindt zich een eigen (fietsen)berging en er is een eigen parkeerplaats in de parkeergarage.
Het complex is rustig gelegen, maar bevindt zich verrassend genoeg op loopafstand van het bruisende, monumentale stadscentrum. Daarnaast ligt het prachtige Rengerspark nabij en zijn er diverse winkels en supermarkten op een prima loop- en/of fietsafstand.
INDELING
Begane grond:
Binnenkomst in de gezamenlijke ruime hal via een overdekte entree met video-intercom. Vanuit deze hal zijn de lift en de ondergelegen parkeergarage, waar zich de eigen berging bevindt, toegankelijk.
Appartement:
Binnenkomst in de ruime hal met toegang tot het toilet, een inpandige kast met cv-opstelling, de beide slaapkamers en de woonkamer. De eerste slaapkamer is ruim 20 m² groot en heeft een badkamer en-suite. Deze badkamer beschikt over een ligbad, 2e toilet, wastafel en douche. Vanuit deze badkamer is er toegang tot een 2e (kleine) badkamer, welke beschikt over een douche en wastafel. Via deze 2e badkamer is tevens de 2e slaapkamer van ca. 14 m² toegankelijk.
In de royale living met visgraat vloer komt veel natuurlijk daglicht binnen via de vele ramen. Er is een schuifpui naar het balkon, evenals openslaande deuren. Vanaf het balkon is er prachtig uitzicht en hier kunt u heerlijk in alle rust zitten, zonder enige inkijk. De dichte keuken is in hoekopstelling en beschikt over o.a. een gaskookplaat met afzuigkap, een vaatwasser, koelkast en vriezer. De inpandige berging/bijkeuken is vanuit de keuken te bereiken en heeft weer een deur naar de hal.
Goed om te weten:
– energielabel B
– 2 ruime slaapkamers
– 2 badkamers
– heerlijk balkon met een fantastisch uitzicht
– eigen parkeerplaats in de parkeergarage en eigen (fietsen)berging
– zonnepanelen op het complex 2025 (voor de gemeenschappelijke ruimten)
– elektrische laadpaal aanwezig in de parkeergarage
– bijdrage VvE is € 391,13 per maand
Kenmerken
Overdracht
- Status Beschikbaar
- Vraagprijs € 540.000 k.k.
- Woonoppervlakte 120 m2
- Inhoud 402 m3
- Kamers 3 kamers (2 slaapkamers)
- Tuin Geen tuin
- Bouwjaar 1991
- Aangeboden sinds 06 oktober 2025
- Aanvaarding In overleg
Parkeren
- Parkeerfaciliteiten Parkeergarage, op eigen terrein
- Garage Parkeerkelder
Indeling
- Ligging Aan water, aan park, aan rustige weg, in woonwijk, vrij uitzicht
- Aantal woonlagen 1
Overig
- CV ketel aanwezig Ja
- CV ketel brandstof Gas
Faciliteiten in de buurt
Aanvullende informatie
Een afspraak plannen
Vul onderstaand formulier in om een afspraak te plannen

Bent u al nieuwsgierig? Wij horen graag van u!
Wij helpen u graag verder met het zoeken van de perfecte woning.