• Aanbod
  • Koop
  • Leeuwarden, Harlingerstraatweg 13B

8913 AA, Leeuwarden

Harlingerstraatweg 13B

€ 495.000 k.k.

Omschrijving

Op de hoek van de statige Harlingerstraatweg en de Westerparkstraat gelegen royale, monumentale hoekwoning met een voor-, zij- en achtertuin waarbij de achtertuin is gelegen op het zonnige zuiden. Direct achter de woning, aan de Westerparkstraat, staat een vrijstaande garage met een voorgelegen eigen oprit.

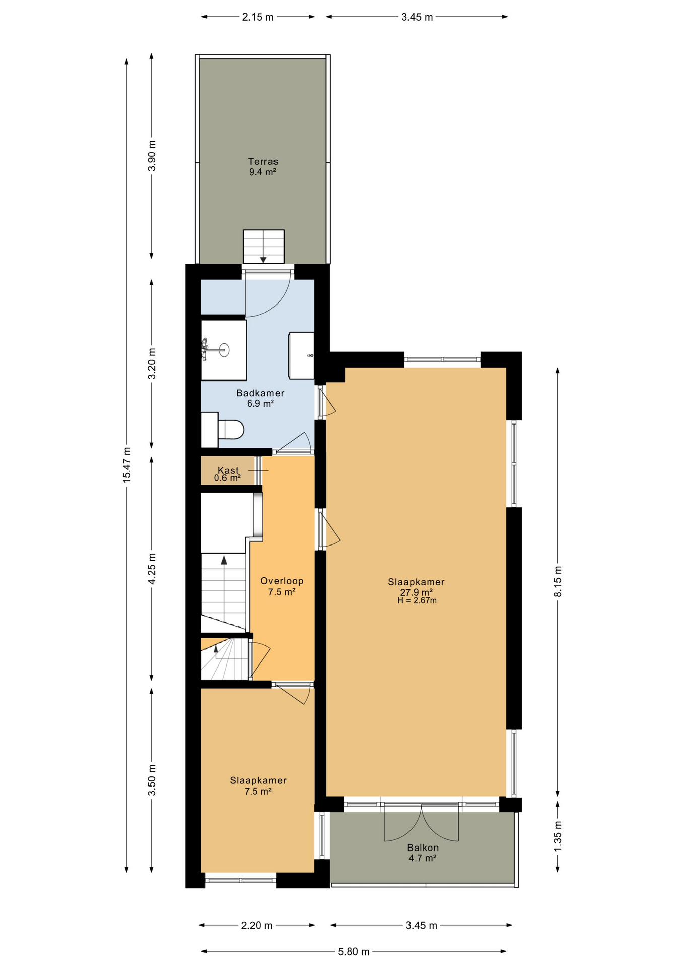
Er zijn 4 slaapkamers met de mogelijkheid voor het realiseren van een 5e slaapkamer, wat het geheel ideaal maakt voor een groter gezin. Er zijn diverse authentieke elementen als een bordestrap, glas-in-lood ramen en een balkenplafond. De woning behoeft enige aandacht en energiebesparende verbeteringen, maar biedt voldoende potentieel.

De ligging aan de rand van de Vosseparkwijk is ideaal en zéér gewild, nabij de Leeuwarder binnenstad en stadspark De Prinsentuin. In de wijk is een basisschool aanwezig evenals kinderopvang voorzieningen. Diverse supermarkten liggen ook nabij, net als de rondweg.

Goed om te weten:
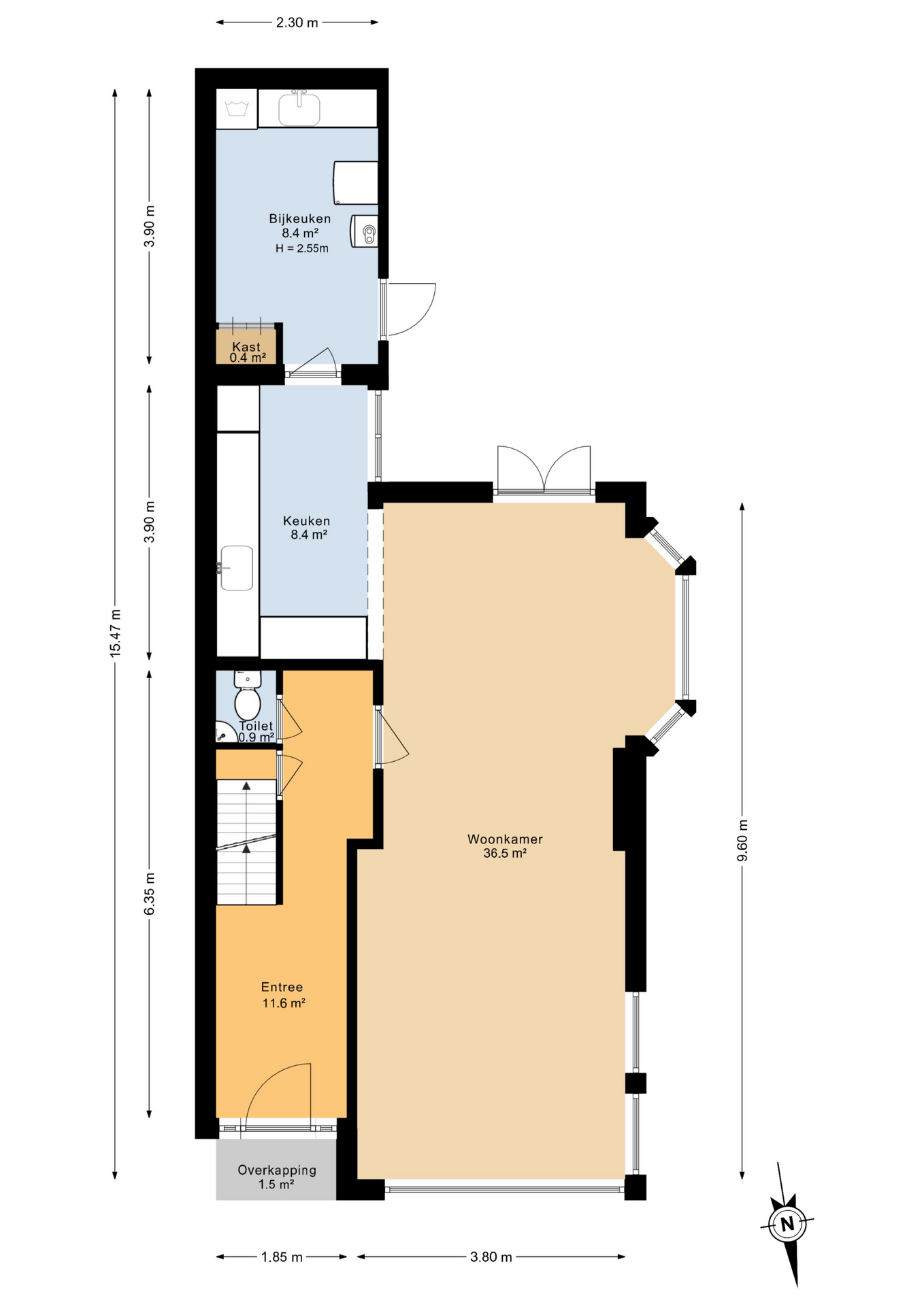
– middels overdekte entree binnenkomst in de ruime hal met trapopgang
– kelder
– doorzonwoonkamer (9.60m) met openslaande deuren naar de achtertuin
– open keuken met doorloop naar ruime achtergelegen bijkeuken
– achtertuin gelegen op het zonnige zuiden met vrijstaande stenen garage
– 2 slaapkamers op de 1e verdieping met mogelijkheid voor het creëren van een 3e slaapkamer
– aan voorzijde gelegen balkon, aan de achterzijde gelegen dakterras
– badkamer met douche, 2e toilet en wastafel
– 2e verdieping met 3e en 4e slaapkamer en veel bergruimte
– zolderberging op de 3e verdieping
– nieuwe cv ketel Remeha uit januari 2025
– energielabel E
– schilderwerk 2022

Lees meer

Kenmerken

  • Status Verkocht onder voorbehoud
  • Vraagprijs € 495.000 k.k.
  • Aangeboden sinds 26 januari 2026
  • Aanvaarding In overleg
Meer kenmerken

Omschrijving

Op de hoek van de statige Harlingerstraatweg en de Westerparkstraat gelegen royale, monumentale hoekwoning met een voor-, zij- en achtertuin waarbij de achtertuin is gelegen op het zonnige zuiden. Direct achter de woning, aan de Westerparkstraat, staat een vrijstaande garage met een voorgelegen eigen oprit.

Er zijn 4 slaapkamers met de mogelijkheid voor het realiseren van een 5e slaapkamer, wat het geheel ideaal maakt voor een groter gezin. Er zijn diverse authentieke elementen als een bordestrap, glas-in-lood ramen en een balkenplafond. De woning behoeft enige aandacht en energiebesparende verbeteringen, maar biedt voldoende potentieel.

De ligging aan de rand van de Vosseparkwijk is ideaal en zéér gewild, nabij de Leeuwarder binnenstad en stadspark De Prinsentuin. In de wijk is een basisschool aanwezig evenals kinderopvang voorzieningen. Diverse supermarkten liggen ook nabij, net als de rondweg.

Goed om te weten:
– middels overdekte entree binnenkomst in de ruime hal met trapopgang
– kelder
– doorzonwoonkamer (9.60m) met openslaande deuren naar de achtertuin
– open keuken met doorloop naar ruime achtergelegen bijkeuken
– achtertuin gelegen op het zonnige zuiden met vrijstaande stenen garage
– 2 slaapkamers op de 1e verdieping met mogelijkheid voor het creëren van een 3e slaapkamer
– aan voorzijde gelegen balkon, aan de achterzijde gelegen dakterras
– badkamer met douche, 2e toilet en wastafel
– 2e verdieping met 3e en 4e slaapkamer en veel bergruimte
– zolderberging op de 3e verdieping
– nieuwe cv ketel Remeha uit januari 2025
– energielabel E
– schilderwerk 2022

Kenmerken

Overdracht
  • Status Verkocht onder voorbehoud
  • Vraagprijs € 495.000 k.k.
  • Woonoppervlakte 165 m2
  • Inhoud 629 m3
  • Kamers 5 kamers (4 slaapkamers)
  • Tuin Achtertuin, voortuin, zijtuin
  • Bouwjaar 1936
  • Aangeboden sinds 26 januari 2026
  • Aanvaarding In overleg
Parkeren
  • Parkeerfaciliteiten Parkeervergunningen
  • Garage Vrijstaand steen
Indeling
  • Ligging In woonwijk
  • Soort woning Herenhuis
  • Type woning Hoekwoning
  • Aantal woonlagen 5
Overig
  • CV ketel aanwezig Ja
  • CV ketel brandstof Gas

Faciliteiten in de buurt

      Bent u al nieuwsgierig? Wij horen graag van u!

      Wij helpen u graag verder met het zoeken van de perfecte woning.

      Aanbod

      Relevante woningen

      Leeuwarden, Roekstraat 35

      € 449.000 k.k.
      Beschikbaar
      Leeuwarden, Roekstraat 35

      Leeuwarden, Johan Willem Frisostraat 5

      € 550.000 k.k.
      Beschikbaar
      Leeuwarden, Johan Willem Frisostraat 5

      Leeuwarden, Kruisstraat 25

      € 495.000 k.k.
      Beschikbaar
      Leeuwarden, Kruisstraat 25

      Leeuwarden, Franckenastate 2

      € 550.000 k.k.
      Beschikbaar
      Leeuwarden, Franckenastate 2

      Leeuwarden, De Ynset 31

      € 535.000 k.k.
      Beschikbaar
      Leeuwarden, De Ynset 31

      Leeuwarden, Mr. P.J. Troelstraweg 17

      € 450.000 k.k.
      Beschikbaar
      Leeuwarden, Mr. P.J. Troelstraweg 17

      Leeuwarden, Slotmakersstraat 11

      € 545.000 k.k.
      Beschikbaar
      Leeuwarden, Slotmakersstraat 11
      Volledige aanbod
      Welke cookies zijn er?

      We onderscheiden verschillende soorten cookies.

      Functionele cookies

      Onze sessie- en blijvende cookies vervallen bij het sluiten van de webbrowser of blijven op uw apparaat staan. Zie hierboven voor meer informatie.

      Analytische cookies

      Onze sessie- en blijvende cookies vervallen bij het sluiten van de webbrowser of blijven op uw apparaat staan. Zie hierboven voor meer informatie.

      Tracking cookies

      Onze sessie- en blijvende cookies vervallen bij het sluiten van de webbrowser of blijven op uw apparaat staan. Zie hierboven voor meer informatie.

      Social media plug-in cookies

      Onze sessie- en blijvende cookies vervallen bij het sluiten van de webbrowser of blijven op uw apparaat staan. Zie hierboven voor meer informatie.