• Aanbod
  • Koop
  • Leeuwarden, Maximillastraat 21

8917 HG, Leeuwarden

Maximillastraat 21

€ 735.000 k.k.

Omschrijving

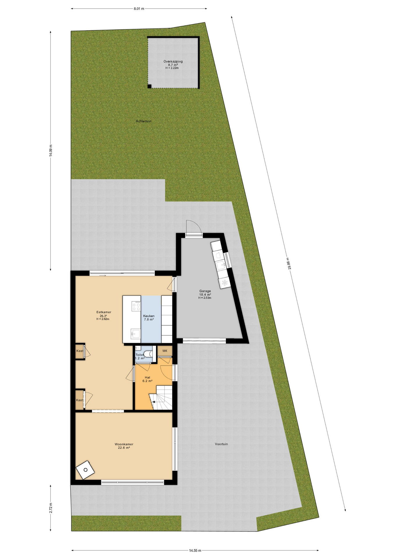
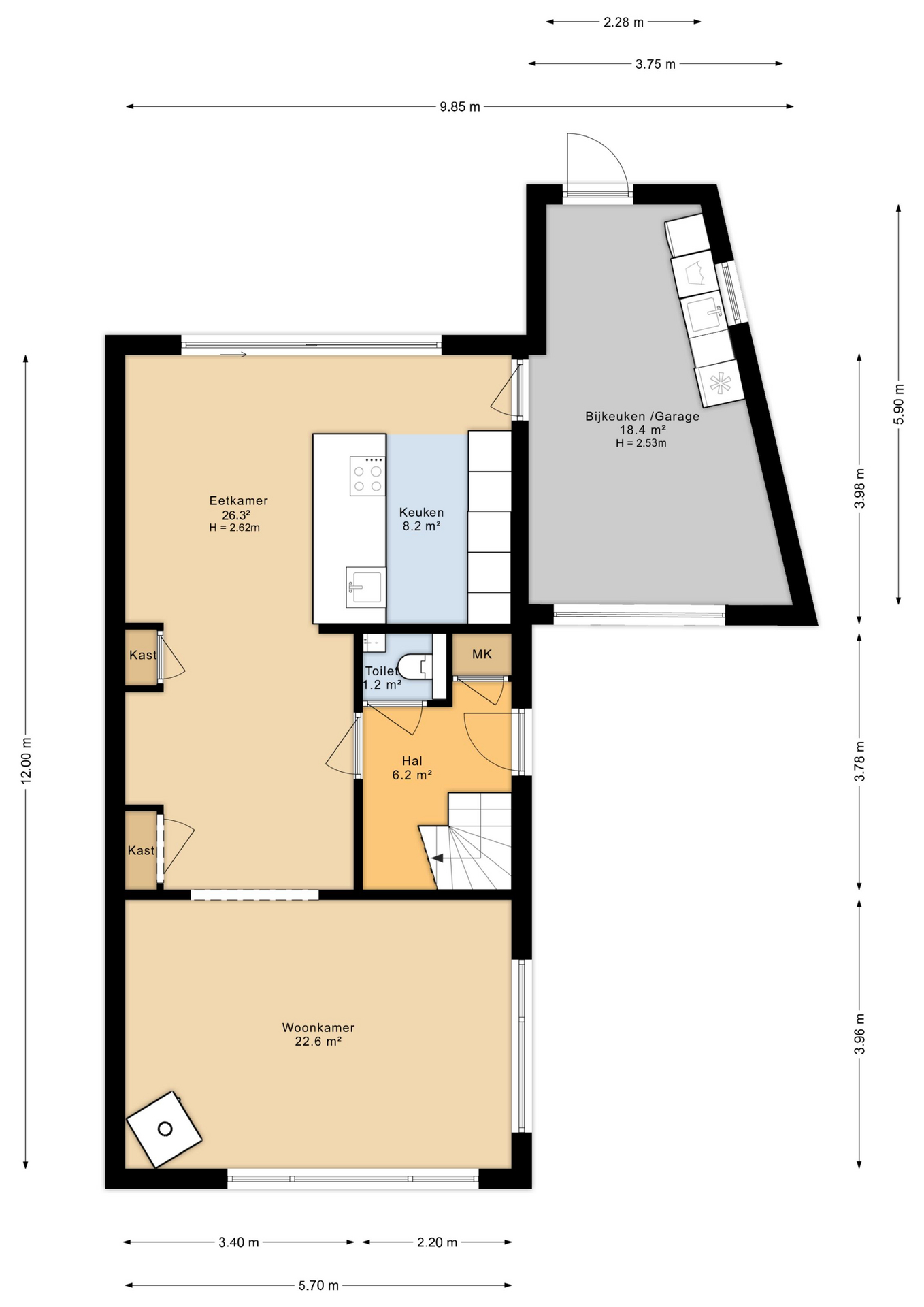
Aan de autoluwe Maximillastraat in het gewilde Bonifatiuspark staat deze royale, verzorgde twee-onder-een-kapwoning met 5 slaapkamers, aangebouwde garage, eigen oprit met ruimte voor 2 auto’s en ruime achtertuin met knusse overkapping.

De woning heeft een gebruiksoppervlakte van 182 m². Bij de bouw is er 1,20 meter uitgebouwd, waardoor meer leefruimte is ontstaan. Achter de keuken ligt bovendien extra fundering voor toekomstige uitbreidingsmogelijkheden. Na oplevering is de volledige achtertuin 50 cm afgegraven en voorzien van nieuwe grond. De garage is verhoogd, geïsoleerd en uitgerust met een zijraam en keukenblok met wasmachine aansluiting. In 2024 zijn de boeidelen en voordeur geschilderd.

Dankzij de kastenwand is de woonkamer ingedeeld in 3 functionele ruimtes. Aan de straatzijde bevindt zich de ruime zitkamer met pelletkachel. De eetkamer en open keuken met kook- en spoeleiland zijn op de tuin gericht. De keuken uit 2017 beschikt over moderne voorzieningen. In 2022 is een Quooker Combi+ Cube geplaatst (kokend en bruisend water) en in 2024 een nieuw composiet werkblad met inductiekookplaat.

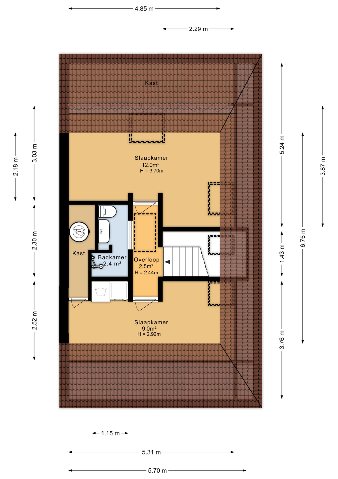
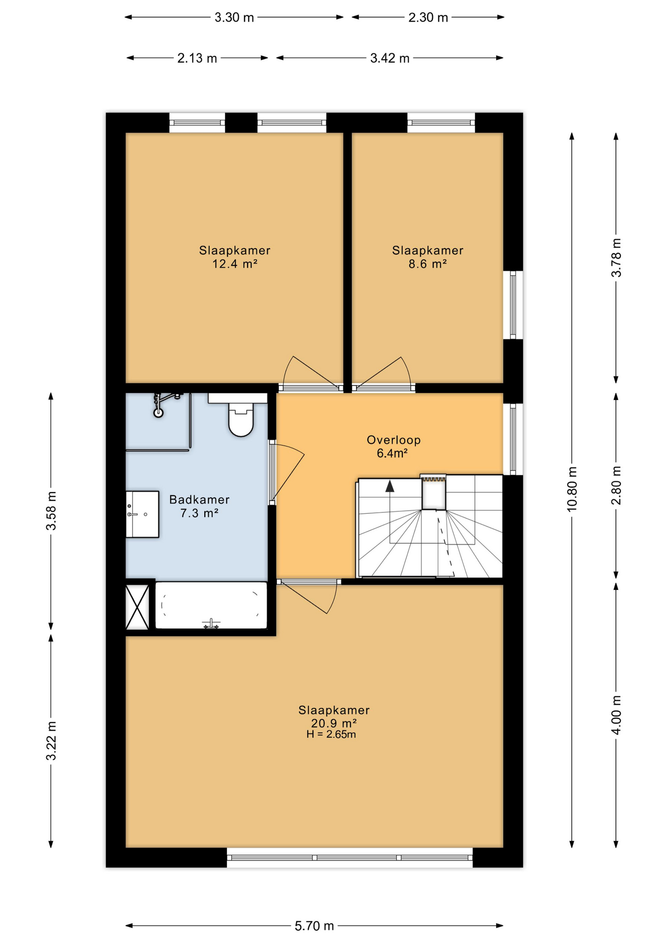
Op de begane grond en eerste verdieping ligt vloerverwarming. Op de tweede verdieping is verwarming niet nodig. Deze tweede verdieping is in 2022 opnieuw ingedeeld en voorzien van twee slaapkamers, een badkamer, een technische ruimte en een (was)wand met een bovengelegen vliering van 1,16 meter hoogte. Ook zijn er ramen geplaatst. De eerste verdieping telt drie slaapkamers, waarbij de grootste kamer de volledige breedte aan de voorzijde beslaat.

De woning staat in de wijk Sint Bonifatiuspark. Ooit stond binnen de ‘muren’ van dit historische stukje Leeuwarden het Bonifatius Hospitaal. De oude naam leeft nog voort in de woonwijk waar deze plek nu voor is ingericht. De wijk staat bekend als kindvriendelijk, doet dorps aan, heeft een parkachtige sfeer en bevindt zich op nog geen vijf minuten fietsen van het centrum van Leeuwarden.

Goed om te weten:
– energielabel A
– 10 zonnepanelen (2022), 415 Wp opbrengst per zonnepaneel
– vloerverwarming begane grond en 1e verdieping
– krachtstroom toegevoegd in 2022, t.b.v. inductiekookplaat
– keuken met diverse inbouwapparatuur uit 2017, met Quooker Combi+ Cube (2022) en nieuw composiet werkblad met inductiekookplaat (2024)
– 2 badkamers (1e verdieping: 2017, 2e verdieping: 2022)
– 14 meter diepe achtertuin
– ruime eigen oprit met garage
– waterontharder
– recent buitenschilderwerk (2024)
– pelletkachel is ter overname

Lees meer

Kenmerken

  • Status Beschikbaar
  • Vraagprijs € 735.000 k.k.
  • Aangeboden sinds 21 november 2025
  • Aanvaarding In overleg
Meer kenmerken

Omschrijving

Aan de autoluwe Maximillastraat in het gewilde Bonifatiuspark staat deze royale, verzorgde twee-onder-een-kapwoning met 5 slaapkamers, aangebouwde garage, eigen oprit met ruimte voor 2 auto’s en ruime achtertuin met knusse overkapping.

De woning heeft een gebruiksoppervlakte van 182 m². Bij de bouw is er 1,20 meter uitgebouwd, waardoor meer leefruimte is ontstaan. Achter de keuken ligt bovendien extra fundering voor toekomstige uitbreidingsmogelijkheden. Na oplevering is de volledige achtertuin 50 cm afgegraven en voorzien van nieuwe grond. De garage is verhoogd, geïsoleerd en uitgerust met een zijraam en keukenblok met wasmachine aansluiting. In 2024 zijn de boeidelen en voordeur geschilderd.

Dankzij de kastenwand is de woonkamer ingedeeld in 3 functionele ruimtes. Aan de straatzijde bevindt zich de ruime zitkamer met pelletkachel. De eetkamer en open keuken met kook- en spoeleiland zijn op de tuin gericht. De keuken uit 2017 beschikt over moderne voorzieningen. In 2022 is een Quooker Combi+ Cube geplaatst (kokend en bruisend water) en in 2024 een nieuw composiet werkblad met inductiekookplaat.

Op de begane grond en eerste verdieping ligt vloerverwarming. Op de tweede verdieping is verwarming niet nodig. Deze tweede verdieping is in 2022 opnieuw ingedeeld en voorzien van twee slaapkamers, een badkamer, een technische ruimte en een (was)wand met een bovengelegen vliering van 1,16 meter hoogte. Ook zijn er ramen geplaatst. De eerste verdieping telt drie slaapkamers, waarbij de grootste kamer de volledige breedte aan de voorzijde beslaat.

De woning staat in de wijk Sint Bonifatiuspark. Ooit stond binnen de ‘muren’ van dit historische stukje Leeuwarden het Bonifatius Hospitaal. De oude naam leeft nog voort in de woonwijk waar deze plek nu voor is ingericht. De wijk staat bekend als kindvriendelijk, doet dorps aan, heeft een parkachtige sfeer en bevindt zich op nog geen vijf minuten fietsen van het centrum van Leeuwarden.

Goed om te weten:
– energielabel A
– 10 zonnepanelen (2022), 415 Wp opbrengst per zonnepaneel
– vloerverwarming begane grond en 1e verdieping
– krachtstroom toegevoegd in 2022, t.b.v. inductiekookplaat
– keuken met diverse inbouwapparatuur uit 2017, met Quooker Combi+ Cube (2022) en nieuw composiet werkblad met inductiekookplaat (2024)
– 2 badkamers (1e verdieping: 2017, 2e verdieping: 2022)
– 14 meter diepe achtertuin
– ruime eigen oprit met garage
– waterontharder
– recent buitenschilderwerk (2024)
– pelletkachel is ter overname

Kenmerken

Overdracht
  • Status Beschikbaar
  • Vraagprijs € 735.000 k.k.
  • Woonoppervlakte 182 m2
  • Inhoud 638 m3
  • Kamers 6 kamers (5 slaapkamers)
  • Tuin Tuin rondom
  • Bouwjaar 2017
  • Aangeboden sinds 21 november 2025
  • Aanvaarding In overleg
Parkeren
  • Parkeerfaciliteiten Openbaar parkeren, op eigen terrein
  • Garage Aangebouwd steen
Indeling
  • Ligging In woonwijk
  • Soort woning Herenhuis
  • Type woning Twee onder een kapwoning
  • Aantal woonlagen 4
Overig
  • CV ketel aanwezig Ja
  • CV ketel brandstof Gas

Faciliteiten in de buurt

      Bent u al nieuwsgierig? Wij horen graag van u!

      Wij helpen u graag verder met het zoeken van de perfecte woning.

      Aanbod

      Relevante woningen

      Leeuwarden, Emmakade 32

      € 675.000 k.k.
      Beschikbaar
      Leeuwarden, Emmakade 32

      Leeuwarden, Gertrudisstraat 3

      € 750.000 k.k.
      Beschikbaar
      Leeuwarden, Gertrudisstraat 3

      Leeuwarden, Moleplaat 49

      € 795.000 k.k.
      Beschikbaar
      Leeuwarden, Moleplaat 49

      Leeuwarden, Spanjaardslaan 137

      € 690.000 k.k.
      Beschikbaar
      Leeuwarden, Spanjaardslaan 137

      Bitgummole, Menamerdyk 2

      € 795.000 k.k.
      Beschikbaar
      Bitgummole, Menamerdyk 2

      Leeuwarden, Weerd 20

      € 695.000 k.k.
      Beschikbaar
      Leeuwarden, Weerd 20
      Volledige aanbod
      Welke cookies zijn er?

      We onderscheiden verschillende soorten cookies.

      Functionele cookies

      Onze sessie- en blijvende cookies vervallen bij het sluiten van de webbrowser of blijven op uw apparaat staan. Zie hierboven voor meer informatie.

      Analytische cookies

      Onze sessie- en blijvende cookies vervallen bij het sluiten van de webbrowser of blijven op uw apparaat staan. Zie hierboven voor meer informatie.

      Tracking cookies

      Onze sessie- en blijvende cookies vervallen bij het sluiten van de webbrowser of blijven op uw apparaat staan. Zie hierboven voor meer informatie.

      Social media plug-in cookies

      Onze sessie- en blijvende cookies vervallen bij het sluiten van de webbrowser of blijven op uw apparaat staan. Zie hierboven voor meer informatie.