Omschrijving
In het gezellige watersportdorp Grou staat deze ruime, geschakelde woning die de afgelopen jaren grondig en smaakvol is verbouwd en tot in de puntjes is afgewerkt. De lichte woonkamer met uitbouw, vloerverwarming en moderne keuken met kookeiland zorgen voor veel wooncomfort. De bijna 8 meter lange dakkapel op de eerste verdieping creëert veel extra ruimte. Op deze verdieping bevinden zich drie slaapkamers en een moderne badkamer. De zolderverdieping biedt ruimte voor opslag en bijvoorbeeld een werk- of logeerkamer. Met een fraai aangelegde tuin, energielabel B en diverse slimme voorzieningen is dit een woning die in veel woonwensen voorziet!
Grou is een gezellig en bekend watersportdorp met vele restaurants, leuke winkels en zomers een volle jachthaven met bootjes. Daarnaast zijn er diverse basisscholen, een middelbare school en vele (water)sportvoorzieningen, een NS-station en ligt het nabij de A32 richting Heerenveen en richting Leeuwarden.
INDELING
Begane grond:
Entree aan de voorzijde, binnenkomst in hal met meterkast (krachtstroom aanwezig), ruime garderobekast en modern toilet met fonteintje. Royale woonkamer met trapkast, openhaard en openslaande deuren naar de achtertuin. De moderne open keuken ligt aan de voorzijde van de woning, heeft een kookeiland en is voorzien van hoogwaardige inbouwapparatuur. Vanuit de woonkamer is de bijkeuken toegankelijk. Hier bevinden zich een aanrechtblok en wasmachinekast met aansluitingen. De gehele begane grondverdieping is voorzien van een pvc vloer met vloerverwarming.
De bijkeuken biedt toegang tot de achtertuin en de voormalige garage, die in gebruik is als berging. Hier bevindt zich tevens een klein, geïsoleerd en verwarmd kantoortje.
De fraai aangelegde, diepe achtertuin is gelegen op het noorden en is voorzien van drainage (aangesloten op een put). Tegen de achtergevel is een fijn terras gecreëerd en voor de kinderen is er een houten speelhuisje aanwezig. Ook zijn er recent een hok, houtopslag en containerombouw geplaatst.
Eerste verdieping:
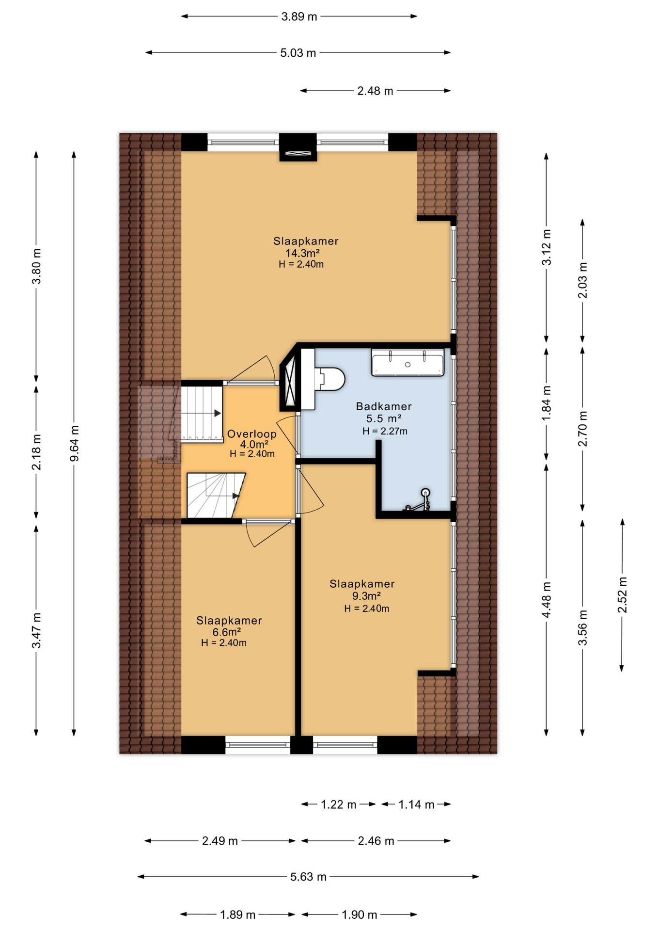
Centrale overloop van waaruit toegang tot 3 slaapkamers en de badkamer. De slaapkamers aan de voorzijde zijn respectievelijk 6,6 m2 en 9,3 m2 groot. De slaapkamer aan de achterzijde is 14,3 m2 groot. De moderne badkamer is voorzien van een toilet, dubbele wastafel en inloopdouche. De kunststof dakkapel van bijna 8 meter lang biedt veel extra ruimte op deze verdieping. Alle kamers zijn voorzien van stuukwerk, nieuwe laminaatvloeren, nieuwe vensterbanken, horren en voldoende wandcontactdozen met kinderbeveiliging.
Tweede verdieping:
Middels een vaste trap bereikbare zolderverdieping met dakraam. Deze ruimte is momenteel ingericht als werkplek, maar kan ook als logeer- of hobbykamer dienst doen. Tevens bevindt zich hier een inbouwkast en een berging voor opslag.
Goed om te weten:
– 129 m2 woonoppervlakte
– energielabel B
– gehele begane grondverdieping is voorzien van vloerverwarming en een pvc vloer
– uitbouw woonkamer, nieuwe pui en openslaande deuren
– laadpaal aanwezig (ter overname)
– nieuwe meterkast met krachtstroom
– voor- en achtertuin (met drainage) opnieuw aangelegd in 2023/2024
– nieuwe keraliten gevelbekleding voor- en achterzijde woning
– 3 zonnepanelen (2025)
Kenmerken
- Status Beschikbaar
- Vraagprijs € 450.000 k.k.
- Aangeboden sinds 03 oktober 2025
- Aanvaarding In overleg
Omschrijving
In het gezellige watersportdorp Grou staat deze ruime, geschakelde woning die de afgelopen jaren grondig en smaakvol is verbouwd en tot in de puntjes is afgewerkt. De lichte woonkamer met uitbouw, vloerverwarming en moderne keuken met kookeiland zorgen voor veel wooncomfort. De bijna 8 meter lange dakkapel op de eerste verdieping creëert veel extra ruimte. Op deze verdieping bevinden zich drie slaapkamers en een moderne badkamer. De zolderverdieping biedt ruimte voor opslag en bijvoorbeeld een werk- of logeerkamer. Met een fraai aangelegde tuin, energielabel B en diverse slimme voorzieningen is dit een woning die in veel woonwensen voorziet!
Grou is een gezellig en bekend watersportdorp met vele restaurants, leuke winkels en zomers een volle jachthaven met bootjes. Daarnaast zijn er diverse basisscholen, een middelbare school en vele (water)sportvoorzieningen, een NS-station en ligt het nabij de A32 richting Heerenveen en richting Leeuwarden.
INDELING
Begane grond:
Entree aan de voorzijde, binnenkomst in hal met meterkast (krachtstroom aanwezig), ruime garderobekast en modern toilet met fonteintje. Royale woonkamer met trapkast, openhaard en openslaande deuren naar de achtertuin. De moderne open keuken ligt aan de voorzijde van de woning, heeft een kookeiland en is voorzien van hoogwaardige inbouwapparatuur. Vanuit de woonkamer is de bijkeuken toegankelijk. Hier bevinden zich een aanrechtblok en wasmachinekast met aansluitingen. De gehele begane grondverdieping is voorzien van een pvc vloer met vloerverwarming.
De bijkeuken biedt toegang tot de achtertuin en de voormalige garage, die in gebruik is als berging. Hier bevindt zich tevens een klein, geïsoleerd en verwarmd kantoortje.
De fraai aangelegde, diepe achtertuin is gelegen op het noorden en is voorzien van drainage (aangesloten op een put). Tegen de achtergevel is een fijn terras gecreëerd en voor de kinderen is er een houten speelhuisje aanwezig. Ook zijn er recent een hok, houtopslag en containerombouw geplaatst.
Eerste verdieping:
Centrale overloop van waaruit toegang tot 3 slaapkamers en de badkamer. De slaapkamers aan de voorzijde zijn respectievelijk 6,6 m2 en 9,3 m2 groot. De slaapkamer aan de achterzijde is 14,3 m2 groot. De moderne badkamer is voorzien van een toilet, dubbele wastafel en inloopdouche. De kunststof dakkapel van bijna 8 meter lang biedt veel extra ruimte op deze verdieping. Alle kamers zijn voorzien van stuukwerk, nieuwe laminaatvloeren, nieuwe vensterbanken, horren en voldoende wandcontactdozen met kinderbeveiliging.
Tweede verdieping:
Middels een vaste trap bereikbare zolderverdieping met dakraam. Deze ruimte is momenteel ingericht als werkplek, maar kan ook als logeer- of hobbykamer dienst doen. Tevens bevindt zich hier een inbouwkast en een berging voor opslag.
Goed om te weten:
– 129 m2 woonoppervlakte
– energielabel B
– gehele begane grondverdieping is voorzien van vloerverwarming en een pvc vloer
– uitbouw woonkamer, nieuwe pui en openslaande deuren
– laadpaal aanwezig (ter overname)
– nieuwe meterkast met krachtstroom
– voor- en achtertuin (met drainage) opnieuw aangelegd in 2023/2024
– nieuwe keraliten gevelbekleding voor- en achterzijde woning
– 3 zonnepanelen (2025)
Kenmerken
Overdracht
- Status Beschikbaar
- Vraagprijs € 450.000 k.k.
- Woonoppervlakte 129 m2
- Inhoud 458 m3
- Kamers 6 kamers (3 slaapkamers)
- Tuin Achtertuin, voortuin
- Bouwjaar 1981
- Aangeboden sinds 03 oktober 2025
- Aanvaarding In overleg
Parkeren
- Parkeerfaciliteiten Openbaar parkeren, op eigen terrein
- Garage Geen garage
Indeling
- Ligging Aan rustige weg, in woonwijk
- Soort woning Eengezinswoning
- Type woning Geschakelde woning
- Aantal woonlagen 3
Overig
- CV ketel aanwezig Ja
- CV ketel brandstof Gas
Faciliteiten in de buurt
Aanvullende informatie
Een afspraak plannen
Vul onderstaand formulier in om een afspraak te plannen

Bent u al nieuwsgierig? Wij horen graag van u!
Wij helpen u graag verder met het zoeken van de perfecte woning.