• Aanbod
  • Koop
  • Leeuwarden, Skuorre 1

8941 BP, Leeuwarden

Skuorre 1

€ 495.000 k.k.

Omschrijving

Uitstekend onderhouden en instapklare hoekwoning, voorzien van een eigen steiger aan het vaarwater en een zonnige achtertuin op het zuidwesten. De woning heeft een moderne, open keuken met spoel- en kookeiland, een ruime, tuingerichte woonkamer en maar liefst 5 slaapkamers! Dankzij het bouwjaar en de daarbij behorende wooneisen, combineert deze woning duurzaamheid met aangenaam wooncomfort. Het geheel is voorzien van een energielabel A.

Techum is een buurtschap in de Zuidlanden, waar u dorps woont met de gemakken van de stad binnen handbereik. In 10 minuten fietst u naar de stad en binnen één minuut zit u op de uitvalswegen. Qua voorzieningen heeft de wijk zelf ook voldoende te bieden, waaronder een basisschool, een kinderopvang, een gezondheidscentrum, diverse sportvoorzieningen en een supermarkt.

Goed om te weten:
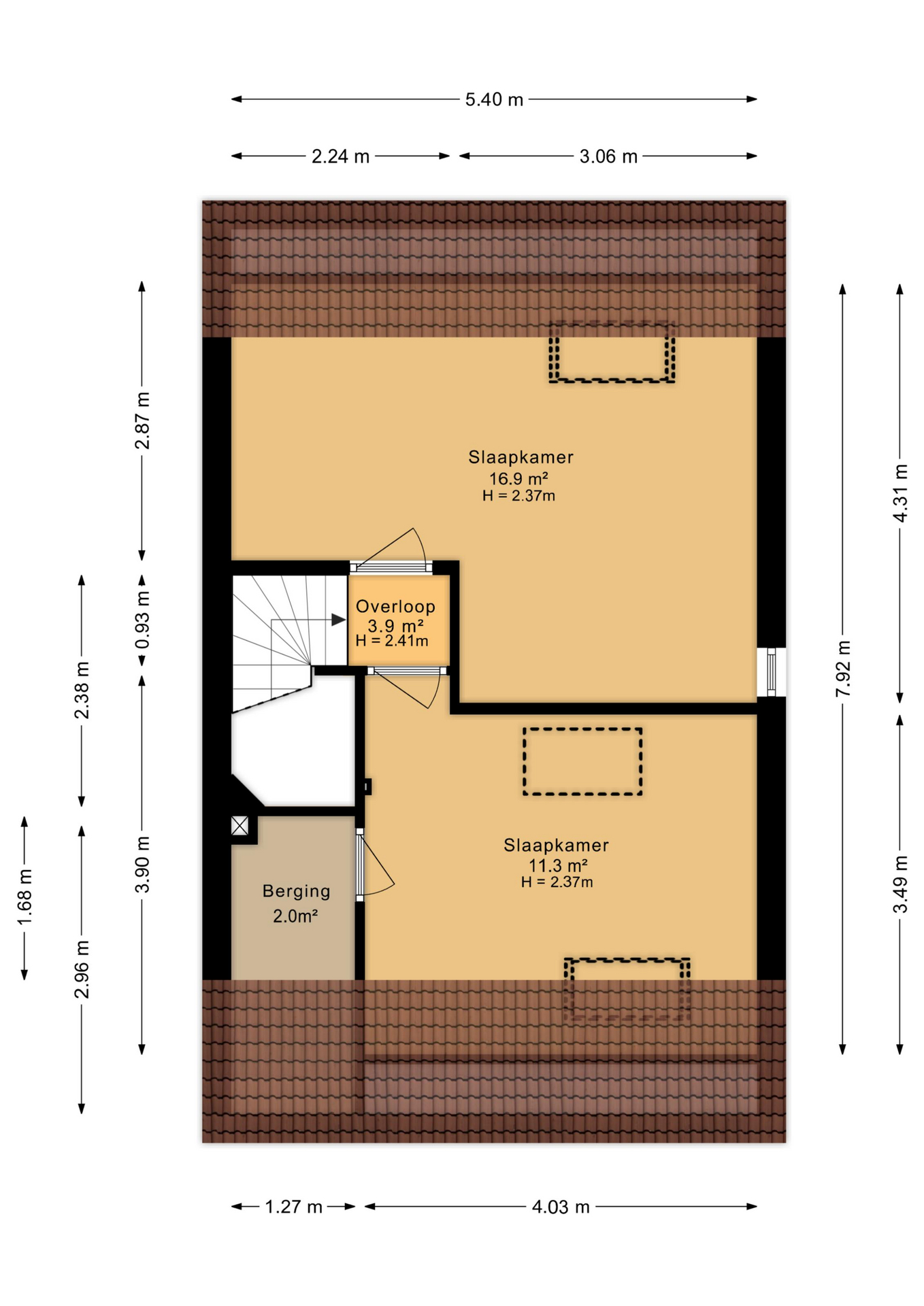
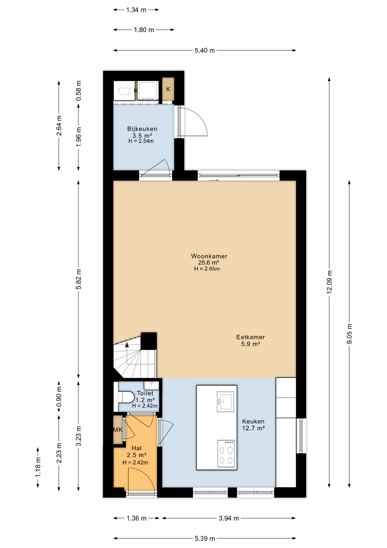
– 139 m² woonoppervlakte
– energielabel A
– kunststof kozijnen
– WTW-installatie (2017)
– stadsverwarming
– woonkamer met vloerverwarming en schuifpui naar de achtertuin
– aangebouwde bijkeuken met witgoedopstelling
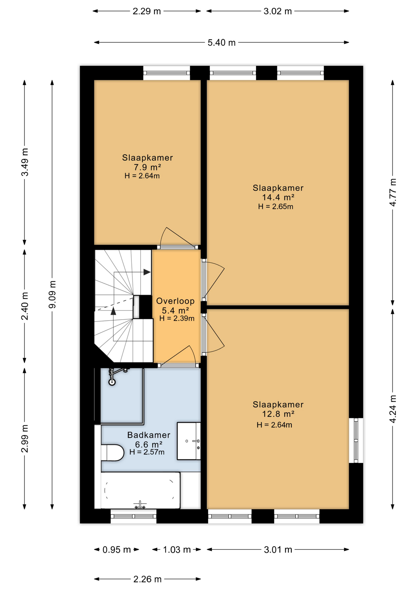
– 5 slaapkamers, 3 op de eerste verdieping en 2 op de tweede verdieping
– ruime vliering voor extra bergruimte
– moderne keuken met kook- en spoeleiland, voorzien van diverse inbouwapparatuur
– badkamer met 2e toilet, ligbad, ruime douche, wastafel met wastafelmeubel en bijbehorende toiletkast
– heerlijke achtertuin op het zuidwesten met een vrijstaande berging en een achterom
– gelegen aan open vaarwater, met eigen steiger en ligplaats
– gelegen aan het einde van de steeg (1/4e eigenaar)
– gewenste aanvaarding januari 2026

Lees meer

Kenmerken

  • Status Beschikbaar
  • Vraagprijs € 495.000 k.k.
  • Aangeboden sinds 22 oktober 2025
  • Aanvaarding In overleg
Meer kenmerken

Omschrijving

Uitstekend onderhouden en instapklare hoekwoning, voorzien van een eigen steiger aan het vaarwater en een zonnige achtertuin op het zuidwesten. De woning heeft een moderne, open keuken met spoel- en kookeiland, een ruime, tuingerichte woonkamer en maar liefst 5 slaapkamers! Dankzij het bouwjaar en de daarbij behorende wooneisen, combineert deze woning duurzaamheid met aangenaam wooncomfort. Het geheel is voorzien van een energielabel A.

Techum is een buurtschap in de Zuidlanden, waar u dorps woont met de gemakken van de stad binnen handbereik. In 10 minuten fietst u naar de stad en binnen één minuut zit u op de uitvalswegen. Qua voorzieningen heeft de wijk zelf ook voldoende te bieden, waaronder een basisschool, een kinderopvang, een gezondheidscentrum, diverse sportvoorzieningen en een supermarkt.

Goed om te weten:
– 139 m² woonoppervlakte
– energielabel A
– kunststof kozijnen
– WTW-installatie (2017)
– stadsverwarming
– woonkamer met vloerverwarming en schuifpui naar de achtertuin
– aangebouwde bijkeuken met witgoedopstelling
– 5 slaapkamers, 3 op de eerste verdieping en 2 op de tweede verdieping
– ruime vliering voor extra bergruimte
– moderne keuken met kook- en spoeleiland, voorzien van diverse inbouwapparatuur
– badkamer met 2e toilet, ligbad, ruime douche, wastafel met wastafelmeubel en bijbehorende toiletkast
– heerlijke achtertuin op het zuidwesten met een vrijstaande berging en een achterom
– gelegen aan open vaarwater, met eigen steiger en ligplaats
– gelegen aan het einde van de steeg (1/4e eigenaar)
– gewenste aanvaarding januari 2026

Kenmerken

Overdracht
  • Status Beschikbaar
  • Vraagprijs € 495.000 k.k.
  • Woonoppervlakte 139 m2
  • Inhoud 536 m3
  • Kamers 6 kamers (5 slaapkamers)
  • Tuin Achtertuin
  • Bouwjaar 2017
  • Aangeboden sinds 22 oktober 2025
  • Aanvaarding In overleg
Parkeren
  • Parkeerfaciliteiten Openbaar parkeren
  • Garage Geen garage
Indeling
  • Ligging In woonwijk, vrij uitzicht
  • Soort woning Eengezinswoning
  • Type woning Hoekwoning
  • Aantal woonlagen 4
Overig

Plattegronden

360-graden foto

Video

Faciliteiten in de buurt

      Bent u al nieuwsgierig? Wij horen graag van u!

      Wij helpen u graag verder met het zoeken van de perfecte woning.

      Aanbod

      Relevante woningen

      Stiens, Wylpstrjitte 3

      € 450.000 k.k.
      Beschikbaar
      Stiens, Wylpstrjitte 3

      Leeuwarden, Bildtsestraat 89

      € 460.000 k.k.
      Onder bod
      Leeuwarden, Bildtsestraat 89

      Leeuwarden, Molenstraat 5

      € 450.000 k.k.
      Onder bod
      Leeuwarden, Molenstraat 5

      Leeuwarden, Pelikaanstraat 1D

      € 535.000 k.k.
      Beschikbaar
      Leeuwarden, Pelikaanstraat 1D

      Leeuwarden, Grote Kerkstraat 63

      € 425.000 k.k.
      Beschikbaar
      Leeuwarden, Grote Kerkstraat 63

      Leeuwarden, Kruisstraat 25

      € 495.000 k.k.
      Beschikbaar
      Leeuwarden, Kruisstraat 25

      Leeuwarden, Wijnhornsterstraat 180

      € 435.000 k.k.
      Beschikbaar
      Leeuwarden, Wijnhornsterstraat 180

      Leeuwarden, Franckenastate 2

      € 565.000 k.k.
      Beschikbaar
      Leeuwarden, Franckenastate 2
      Volledige aanbod
      Welke cookies zijn er?

      We onderscheiden verschillende soorten cookies.

      Functionele cookies

      Onze sessie- en blijvende cookies vervallen bij het sluiten van de webbrowser of blijven op uw apparaat staan. Zie hierboven voor meer informatie.

      Analytische cookies

      Onze sessie- en blijvende cookies vervallen bij het sluiten van de webbrowser of blijven op uw apparaat staan. Zie hierboven voor meer informatie.

      Tracking cookies

      Onze sessie- en blijvende cookies vervallen bij het sluiten van de webbrowser of blijven op uw apparaat staan. Zie hierboven voor meer informatie.

      Social media plug-in cookies

      Onze sessie- en blijvende cookies vervallen bij het sluiten van de webbrowser of blijven op uw apparaat staan. Zie hierboven voor meer informatie.