Omschrijving
In de groene, waterrijke én kindvriendelijke woonwijk Zuiderburen gelegen ruime, sfeervolle en uitstekend onderhouden twee-onder-één kapwoning. De woning ligt aan het open vaarwater, heeft een heerlijk terras aan het water en uiteraard de mogelijkheid voor het aanleggen van een boot. Er is een aangebouwde stenen garage en een heerlijke achtertuin gesitueerd op het zonnige zuiden met beschut terras.
Verder beschikt de woning over een moderne keuken, moderne badkamer én 4 ruime slaapkamers. Zoals genoemd is de woning uitstekend onderhouden en beschikt deze over een energielabel A.
Zuiderburen is een ruim opgezette (nieuwbouw)wijk met veel water en groen en is gelegen aan de zuidkant van Leeuwarden. Er zijn twee basisscholen, kinderopvangvoorzieningen, vele sportvoorzieningen in de nabije omgeving en een eigen winkelcentrum met een Jumbo supermarkt, snackbar, bloemenwinkel, kapper en een HEMA. De N31 en de A32 liggen zéér nabij.
INDELING
Begane grond:
Overdekte entree aan de voorzijde met aan de rechterhand de aangebouwde stenen garage. De ruimte entree/hal heeft een doorloop naar de garage en geeft toegang tot het toilet en de woonkamer.
De moderne open keuken, voorzien van diverse inbouwapparatuur is aan de voorzijde van de woning gesitueerd. Er is een groot raam tot op de grond, wat zorgt voor veel natuurlijk lichtinval. De ruime en lichte woonkamer (34m²) heeft openslaande deuren naar de achtertuin.
De aangebouwde garage heeft aan de voorzijde een elektrische deur en aan de achterzijde een loopdeur naar de tuin. De auto kan worden geparkeerd op de eigen oprit.
De zonnige en speels ingedeelde achtertuin is gesitueerd op het zuiden en heeft over bijna de gehele breedte van de tuin een vlonder terras. Er is diverse begroeiing, wat zorgt voor veel privacy en middels een afgesloten hekwerk, is er toegang tot de eigen steiger. Hier is de mogelijkheid voor het aanleggen van een boot. Er zijn diverse zithoekjes, ook op de steiger en er is een achterom aanwezig.
1e verdieping:
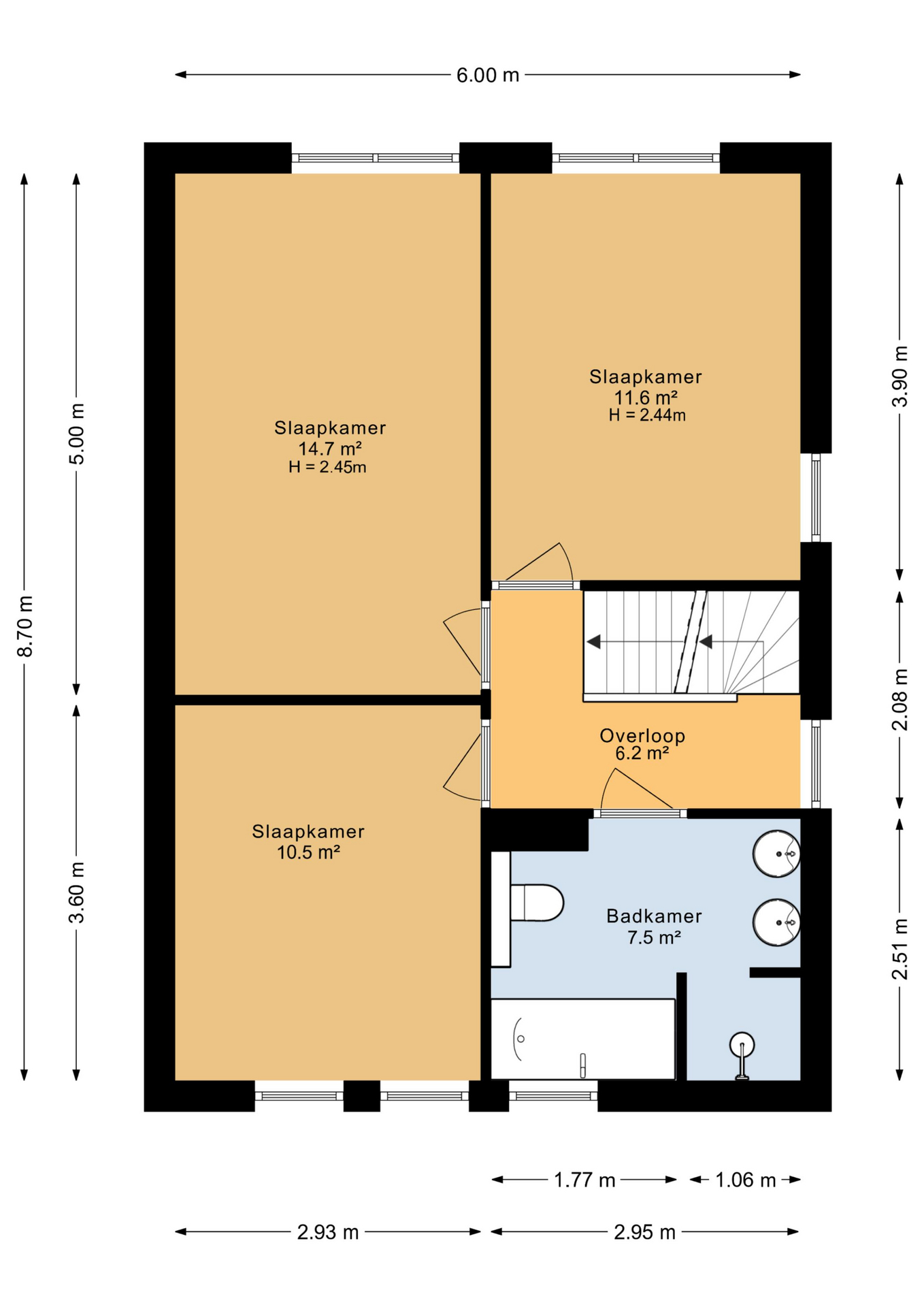
Overloop met de vaste trap naar de 2e verdieping. Op deze verdieping zijn er drie slaapkamers, één aan de voorzijde (10,5m²) en twee aan de achterzijde (14,7m² en 11,6m²). De volledig betegelde badkamer ligt aan de voorzijde en beschikt over een ligbad, 2e toilet, ruime inloopdouche en een badkamermeubel met twee waskommen.
2e verdieping:
Middels vaste trap bereikbare ruime overloop alwaar de cv opstelling en de aansluitingen voor het witgoed zitten.
De ruime 4e slaapkamer (13m²) heeft een dakraam en extra bergruimte in de knieschotten.
Goed om te weten:
– 4 ruime slaapkamers
– moderne keuken én moderne badkamer
– energielabel A
– gelegen aan open vaarwater
– mogelijkheid tot het aanleggen van een boot
– heerlijke achtertuin, aan het water, gesitueerd op het zonnige zuiden
Kenmerken
- Status Beschikbaar
- Vraagprijs € 595.000 k.k.
- Aangeboden sinds 06 oktober 2025
- Aanvaarding In overleg
Omschrijving
In de groene, waterrijke én kindvriendelijke woonwijk Zuiderburen gelegen ruime, sfeervolle en uitstekend onderhouden twee-onder-één kapwoning. De woning ligt aan het open vaarwater, heeft een heerlijk terras aan het water en uiteraard de mogelijkheid voor het aanleggen van een boot. Er is een aangebouwde stenen garage en een heerlijke achtertuin gesitueerd op het zonnige zuiden met beschut terras.
Verder beschikt de woning over een moderne keuken, moderne badkamer én 4 ruime slaapkamers. Zoals genoemd is de woning uitstekend onderhouden en beschikt deze over een energielabel A.
Zuiderburen is een ruim opgezette (nieuwbouw)wijk met veel water en groen en is gelegen aan de zuidkant van Leeuwarden. Er zijn twee basisscholen, kinderopvangvoorzieningen, vele sportvoorzieningen in de nabije omgeving en een eigen winkelcentrum met een Jumbo supermarkt, snackbar, bloemenwinkel, kapper en een HEMA. De N31 en de A32 liggen zéér nabij.
INDELING
Begane grond:
Overdekte entree aan de voorzijde met aan de rechterhand de aangebouwde stenen garage. De ruimte entree/hal heeft een doorloop naar de garage en geeft toegang tot het toilet en de woonkamer.
De moderne open keuken, voorzien van diverse inbouwapparatuur is aan de voorzijde van de woning gesitueerd. Er is een groot raam tot op de grond, wat zorgt voor veel natuurlijk lichtinval. De ruime en lichte woonkamer (34m²) heeft openslaande deuren naar de achtertuin.
De aangebouwde garage heeft aan de voorzijde een elektrische deur en aan de achterzijde een loopdeur naar de tuin. De auto kan worden geparkeerd op de eigen oprit.
De zonnige en speels ingedeelde achtertuin is gesitueerd op het zuiden en heeft over bijna de gehele breedte van de tuin een vlonder terras. Er is diverse begroeiing, wat zorgt voor veel privacy en middels een afgesloten hekwerk, is er toegang tot de eigen steiger. Hier is de mogelijkheid voor het aanleggen van een boot. Er zijn diverse zithoekjes, ook op de steiger en er is een achterom aanwezig.
1e verdieping:
Overloop met de vaste trap naar de 2e verdieping. Op deze verdieping zijn er drie slaapkamers, één aan de voorzijde (10,5m²) en twee aan de achterzijde (14,7m² en 11,6m²). De volledig betegelde badkamer ligt aan de voorzijde en beschikt over een ligbad, 2e toilet, ruime inloopdouche en een badkamermeubel met twee waskommen.
2e verdieping:
Middels vaste trap bereikbare ruime overloop alwaar de cv opstelling en de aansluitingen voor het witgoed zitten.
De ruime 4e slaapkamer (13m²) heeft een dakraam en extra bergruimte in de knieschotten.
Goed om te weten:
– 4 ruime slaapkamers
– moderne keuken én moderne badkamer
– energielabel A
– gelegen aan open vaarwater
– mogelijkheid tot het aanleggen van een boot
– heerlijke achtertuin, aan het water, gesitueerd op het zonnige zuiden
Kenmerken
Overdracht
- Status Beschikbaar
- Vraagprijs € 595.000 k.k.
- Woonoppervlakte 136 m2
- Inhoud 559 m3
- Kamers 5 kamers (4 slaapkamers)
- Tuin Achtertuin, voortuin
- Bouwjaar 2002
- Aangeboden sinds 06 oktober 2025
- Aanvaarding In overleg
Parkeren
- Parkeerfaciliteiten Op eigen terrein
- Garage Aangebouwd steen
Indeling
- Ligging Aan water, aan rustige weg, in woonwijk, aan vaarwater
- Soort woning Eengezinswoning
- Type woning Twee onder een kapwoning
- Aantal woonlagen 3
Overig
- CV ketel aanwezig Ja
- CV ketel brandstof Gas
Faciliteiten in de buurt
Aanvullende informatie
Een afspraak plannen
Vul onderstaand formulier in om een afspraak te plannen

Bent u al nieuwsgierig? Wij horen graag van u!
Wij helpen u graag verder met het zoeken van de perfecte woning.