• Aanbod
  • Koop
  • Leeuwarden, Vredeman de Vriesstraat 46

8921 BV, Leeuwarden

Vredeman de Vriesstraat 46

€ 395.000 k.k.

Omschrijving

Op een prachtige, rustige en gewilde woonstand, net buiten het stadscentrum gelegen karakteristieke tussenwoning met een heerlijke achtertuin gesitueerd op het zonnige zuiden. De woning is door de huidige eigenaren uitstekend onderhouden en voorzien van een moderne keuken, toilet én een moderne badkamer. Er is een energielabel A, de woning is volledig geïsoleerd, er is deels vloerverwarming en er liggen 6 zonnepanelen op het dak.

De woning ligt op loopafstand van de Leeuwarder binnenstad, vlak achter de Emmakade en in de nabije omgeving zijn diverse voorzieningen zoals een basisschool en een Albert Heijn.

INDELING

Begane grond:
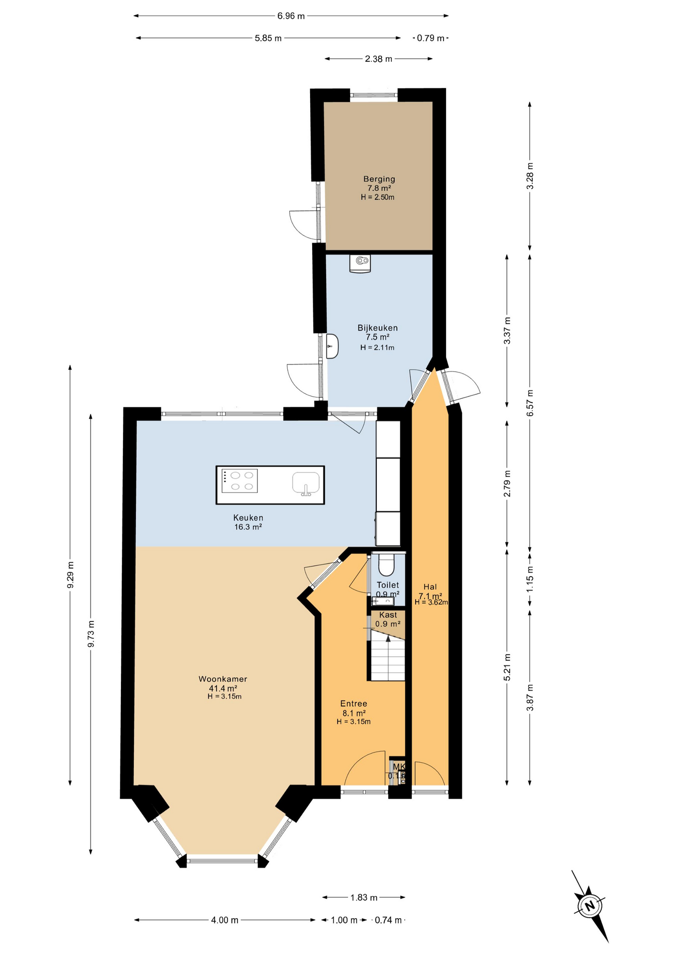
Entree in de ruime hal met de trap opgang en het moderne toilet. Rechts van de entree is een overdekte steeg welke gezamenlijk is met de buren aan de rechterkant. De woonkamer heeft een sfeervolle erker aan de straatzijde en aan de achterzijde, in de keuken, is er een schuifpui naar de achtertuin.

De moderne open keuken uit 2024, voorzien van een kook- en spoeleiland ligt aan de achterzijde en beschikt over een inductiekookplaat, oven, koel-vriescombinatie, vaatwasser en een elektrische boiler voor direct warm water. Vanuit de keuken is er een doorloop naar de bijkeuken, welke ook via de gezamenlijke steeg toegankelijk is. Achter de bijkeuken bevindt zich een aangebouwde stenen berging.

De achtertuin is gesitueerd op het zonnige zuiden, is erg beschut en biedt veel privacy door de bomen aan de achterzijde.

Eerste verdieping:
Fantastische werkplek op de zéér royale overloop. Door het weer plaatsen van een muur, is hier gemakkelijk een 3e ruime slaapkamer te maken. De ruime slaapkamer (bijna 16m)² aan de voorzijde heeft toegang tot een balkon op het noorden. De slaapkamer aan de achterzijde is 12,5m². De moderne badkamer is voorzien van ligbad, ruime inloopdouche, wastafelmeubel met dubbele wastafel en toilet.

Goed om te weten:
– energielabel A
– 6 zonnepanelen
– houten kozijnen voorzijde woning, kunststof kozijnen achterzijde woning
– vloerverwarming begane grond
– beschermd stadsgezicht
– overdekte steeg met recht van overpad
– recent buitenschilderwerk (2025)

Lees meer

Kenmerken

  • Status Verkocht
  • Vraagprijs € 395.000 k.k.
  • Aangeboden sinds 12 januari 2026
  • Aanvaarding In overleg
Meer kenmerken

Omschrijving

Op een prachtige, rustige en gewilde woonstand, net buiten het stadscentrum gelegen karakteristieke tussenwoning met een heerlijke achtertuin gesitueerd op het zonnige zuiden. De woning is door de huidige eigenaren uitstekend onderhouden en voorzien van een moderne keuken, toilet én een moderne badkamer. Er is een energielabel A, de woning is volledig geïsoleerd, er is deels vloerverwarming en er liggen 6 zonnepanelen op het dak.

De woning ligt op loopafstand van de Leeuwarder binnenstad, vlak achter de Emmakade en in de nabije omgeving zijn diverse voorzieningen zoals een basisschool en een Albert Heijn.

INDELING

Begane grond:
Entree in de ruime hal met de trap opgang en het moderne toilet. Rechts van de entree is een overdekte steeg welke gezamenlijk is met de buren aan de rechterkant. De woonkamer heeft een sfeervolle erker aan de straatzijde en aan de achterzijde, in de keuken, is er een schuifpui naar de achtertuin.

De moderne open keuken uit 2024, voorzien van een kook- en spoeleiland ligt aan de achterzijde en beschikt over een inductiekookplaat, oven, koel-vriescombinatie, vaatwasser en een elektrische boiler voor direct warm water. Vanuit de keuken is er een doorloop naar de bijkeuken, welke ook via de gezamenlijke steeg toegankelijk is. Achter de bijkeuken bevindt zich een aangebouwde stenen berging.

De achtertuin is gesitueerd op het zonnige zuiden, is erg beschut en biedt veel privacy door de bomen aan de achterzijde.

Eerste verdieping:
Fantastische werkplek op de zéér royale overloop. Door het weer plaatsen van een muur, is hier gemakkelijk een 3e ruime slaapkamer te maken. De ruime slaapkamer (bijna 16m)² aan de voorzijde heeft toegang tot een balkon op het noorden. De slaapkamer aan de achterzijde is 12,5m². De moderne badkamer is voorzien van ligbad, ruime inloopdouche, wastafelmeubel met dubbele wastafel en toilet.

Goed om te weten:
– energielabel A
– 6 zonnepanelen
– houten kozijnen voorzijde woning, kunststof kozijnen achterzijde woning
– vloerverwarming begane grond
– beschermd stadsgezicht
– overdekte steeg met recht van overpad
– recent buitenschilderwerk (2025)

Kenmerken

Overdracht
  • Status Verkocht
  • Vraagprijs € 395.000 k.k.
  • Woonoppervlakte 117 m2
  • Inhoud 526 m3
  • Kamers 4 kamers (3 slaapkamers)
  • Tuin Achtertuin, voortuin
  • Bouwjaar 1917
  • Aangeboden sinds 12 januari 2026
  • Aanvaarding In overleg
Parkeren
  • Parkeerfaciliteiten Parkeervergunningen
  • Garage Geen garage
Indeling
  • Ligging Aan rustige weg, in woonwijk
  • Soort woning Eengezinswoning
  • Type woning Geschakelde woning
  • Aantal woonlagen 2
Overig
  • CV ketel aanwezig Ja
  • CV ketel brandstof Gas

Plattegronden

360-graden foto

Video

Faciliteiten in de buurt

      Bent u al nieuwsgierig? Wij horen graag van u!

      Wij helpen u graag verder met het zoeken van de perfecte woning.

      Aanbod

      Relevante woningen

      Leeuwarden, Gysbert Japicxstraat 46A

      € 395.000 k.k.
      Beschikbaar
      Leeuwarden, Gysbert Japicxstraat 46A

      Leeuwarden, Mr. P.J. Troelstraweg 17

      € 450.000 k.k.
      Beschikbaar
      Leeuwarden, Mr. P.J. Troelstraweg 17

      Hurdegaryp, Rijksstraatweg 126

      € 365.000 k.k.
      Beschikbaar
      Hurdegaryp, Rijksstraatweg 126

      Leeuwarden, Dr. Bearda Bakkerstraat 20

      € 365.000 k.k.
      Beschikbaar
      Leeuwarden, Dr. Bearda Bakkerstraat 20

      Leeuwarden, Reinder Brolsmawei 10

      € 350.000 k.k.
      Beschikbaar
      Leeuwarden, Reinder Brolsmawei 10

      Leeuwarden, Vincent van Goghstraat 52

      € 375.000 k.k.
      Beschikbaar
      Leeuwarden, Vincent van Goghstraat 52
      Volledige aanbod
      Welke cookies zijn er?

      We onderscheiden verschillende soorten cookies.

      Functionele cookies

      Onze sessie- en blijvende cookies vervallen bij het sluiten van de webbrowser of blijven op uw apparaat staan. Zie hierboven voor meer informatie.

      Analytische cookies

      Onze sessie- en blijvende cookies vervallen bij het sluiten van de webbrowser of blijven op uw apparaat staan. Zie hierboven voor meer informatie.

      Tracking cookies

      Onze sessie- en blijvende cookies vervallen bij het sluiten van de webbrowser of blijven op uw apparaat staan. Zie hierboven voor meer informatie.

      Social media plug-in cookies

      Onze sessie- en blijvende cookies vervallen bij het sluiten van de webbrowser of blijven op uw apparaat staan. Zie hierboven voor meer informatie.