• Aanbod
  • Koop
  • Leeuwarden, Gysbert Japicxstraat 44

8933 BD, Leeuwarden

Gysbert Japicxstraat 44

€ 450.000 k.k.

Omschrijving

In de prachtige Oranjewijk, pal achter de Emmakade, staat deze in 2023 verbouwde en gerenoveerde hoekwoning met een heerlijke achtertuin op het zonnige zuiden, voorzien van een berging en een achterom.

De woning maakt onderdeel uit van een zeer fraai monumentaal pand; een voormalige meubelfabriek, gebouwd in de Overgangsstijl in 1905. Nummer 44, betreft de “directeurswoning”. Het geheel heeft een karakteristieke uitstraling, maar beschikt over vele gemakken en comfort van een hedendaagse woning.

De woning beschikt onder andere over een moderne keuken, een moderne badkamer en 3 slaapkamers op de 1e verdieping. Op de 2e verdieping bevindt zich een ruime zolder, bereikbaar via een vlizotrap.

Er liggen vele voorzieningen op loopafstand, evenals de Leeuwarder binnenstad. In de nabije omgeving is een Albert Heijn, een speeltuin en de rondweg ligt tevens vlakbij.

Goed om te weten:
– in 2023 grotendeels verbouwd en gerenoveerd
– prachtige entree in de ruime hal en gang
– ruime woonkamer en moderne keuken op de begane grond
– achtertuin gesitueerd op het zonnige zuiden voorzien van een achterom en een houten berging
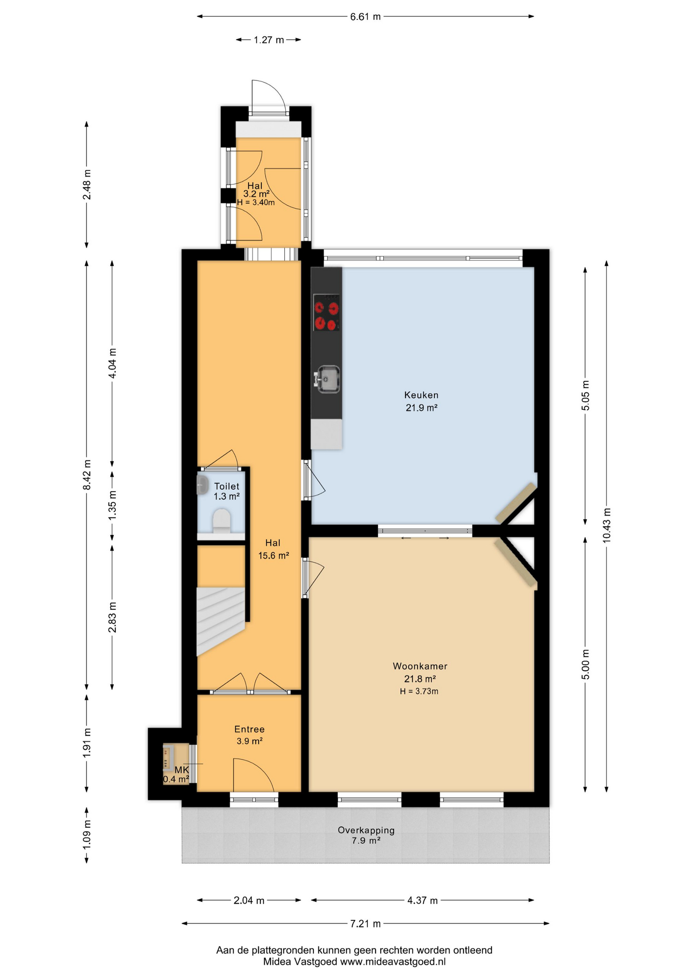
– 1e verdieping met ruime overloop en 3 ruime slaapkamers (11,8 m², 11,2 m² en 15,2 m²)
– moderne badkamer voorzien van een ligbad, douche, 2e wastafel en toilet
– ruime zolder op de 2e verdieping
– 140 m² woonoppervlak
– monumentaal object
– snel te aanvaarden
– de woning maakt deel uit van VvE De Klasse; de maandelijkse VvE-bijdrage bedraagt €175

Lees meer

Kenmerken

  • Status Beschikbaar
  • Vraagprijs € 450.000 k.k.
  • Aangeboden sinds 08 april 2026
  • Aanvaarding In overleg
Meer kenmerken

Omschrijving

In de prachtige Oranjewijk, pal achter de Emmakade, staat deze in 2023 verbouwde en gerenoveerde hoekwoning met een heerlijke achtertuin op het zonnige zuiden, voorzien van een berging en een achterom.

De woning maakt onderdeel uit van een zeer fraai monumentaal pand; een voormalige meubelfabriek, gebouwd in de Overgangsstijl in 1905. Nummer 44, betreft de “directeurswoning”. Het geheel heeft een karakteristieke uitstraling, maar beschikt over vele gemakken en comfort van een hedendaagse woning.

De woning beschikt onder andere over een moderne keuken, een moderne badkamer en 3 slaapkamers op de 1e verdieping. Op de 2e verdieping bevindt zich een ruime zolder, bereikbaar via een vlizotrap.

Er liggen vele voorzieningen op loopafstand, evenals de Leeuwarder binnenstad. In de nabije omgeving is een Albert Heijn, een speeltuin en de rondweg ligt tevens vlakbij.

Goed om te weten:
– in 2023 grotendeels verbouwd en gerenoveerd
– prachtige entree in de ruime hal en gang
– ruime woonkamer en moderne keuken op de begane grond
– achtertuin gesitueerd op het zonnige zuiden voorzien van een achterom en een houten berging
– 1e verdieping met ruime overloop en 3 ruime slaapkamers (11,8 m², 11,2 m² en 15,2 m²)
– moderne badkamer voorzien van een ligbad, douche, 2e wastafel en toilet
– ruime zolder op de 2e verdieping
– 140 m² woonoppervlak
– monumentaal object
– snel te aanvaarden
– de woning maakt deel uit van VvE De Klasse; de maandelijkse VvE-bijdrage bedraagt €175

Kenmerken

Overdracht
  • Status Beschikbaar
  • Vraagprijs € 450.000 k.k.
  • Woonoppervlakte 140 m2
  • Inhoud 702 m3
  • Kamers 4 kamers (3 slaapkamers)
  • Tuin Achtertuin
  • Bouwjaar 1905
  • Aangeboden sinds 08 april 2026
  • Aanvaarding In overleg
Parkeren
  • Parkeerfaciliteiten Openbaar parkeren
  • Garage Geen garage
Indeling
  • Ligging Aan rustige weg, in woonwijk
  • Soort woning Eengezinswoning
  • Type woning Eindwoning
  • Aantal woonlagen 3
Overig
  • CV ketel aanwezig Ja
  • CV ketel brandstof Gas

Faciliteiten in de buurt

      Bent u al nieuwsgierig? Wij horen graag van u!

      Wij helpen u graag verder met het zoeken van de perfecte woning.

      Aanbod

      Relevante woningen

      Wirdum, Dekenskamp 4

      € 489.000 k.k.
      Beschikbaar
      Wirdum, Dekenskamp 4

      Leeuwarden, Mr. P.J. Troelstraweg 17

      € 450.000 k.k.
      Onder bod
      Leeuwarden, Mr. P.J. Troelstraweg 17

      Leeuwarden, De Markol 5

      € 510.000 k.k.
      Beschikbaar
      Leeuwarden, De Markol 5
      Volledige aanbod
      Welke cookies zijn er?

      We onderscheiden verschillende soorten cookies.

      Functionele cookies

      Onze sessie- en blijvende cookies vervallen bij het sluiten van de webbrowser of blijven op uw apparaat staan. Zie hierboven voor meer informatie.

      Analytische cookies

      Onze sessie- en blijvende cookies vervallen bij het sluiten van de webbrowser of blijven op uw apparaat staan. Zie hierboven voor meer informatie.

      Tracking cookies

      Onze sessie- en blijvende cookies vervallen bij het sluiten van de webbrowser of blijven op uw apparaat staan. Zie hierboven voor meer informatie.

      Social media plug-in cookies

      Onze sessie- en blijvende cookies vervallen bij het sluiten van de webbrowser of blijven op uw apparaat staan. Zie hierboven voor meer informatie.